start I projekte I büro I kontakt I impressum
entwurf für ein wohnhaus in blasewitz „schneckenhaus“

Grundstück und Konzeption
Inmitten eines innerstädtischen Wohngebietes sollte dieses Einfamilienhaus als Solitär auf einem ebenen Grundstück entstehen. Die Vorgabe der Bauherren war eine schon vorhandene Grundrissaufteilung in sehr amorpher Struktur, Raumhöhen von 3,10m und eine Wohnfläche von ca. 210 qm. Ziel war eine übergeordnete Struktur und Figur zu finden, welche das vorhandene Layout in sich aufnimmt und eine eindeutige architektonische Aussage zeigt.
Es entstand eine schneckenartige, in sich rotierende Form, die sowohl Geborgenheit und als auch Offenheit zuläßt. Das „Schneckenhaus“.

Raumorganisation
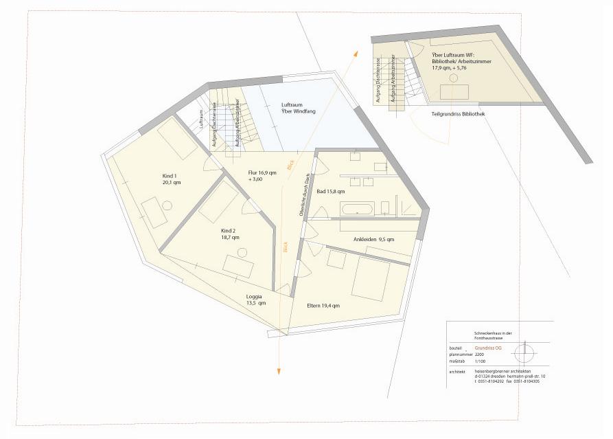
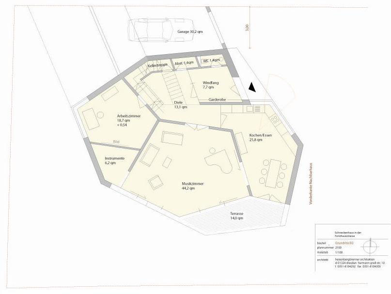
Das Herzstück des ganzen Hauses ist ein fünfeckiges Musikzimmer im Erdgeschoss mit raumhoher Verglasung nach Süden zum Garten hin. Um dieses Musikzimmer herum orientieren sich Küche, Flur, Instrumentenraum und Arbeitszimmer. Der im Norden liegende Flur verbunden mit dem zweigeschossigen verglasten Eingangsbereich bildet das abschottende Rückgrat des Hauses. Im Obergeschoss befinden sich Schlafräume, Ankleide und das Bad in einem halbgeschossig über dem Obergeschoss gelegenen Panoramazimmer ist das Arbeitszimmer untergebracht, welches das Dach an dieser Stelle anhebt.
So wird auch im Dreidimensionalen der Charakter eines Schneckenhauses ablesbar.

Baukonstruktion
Stahlbeton und Glas. Fassade als Wärmedämmverbundsystem. Dach als Holzkonstruktion mit Blecheindeckung mit Solarzellen auf dem Dach angedacht.

Daten
Standort
Grundstück
Wohnfläche


Dresden Striesen
730 m²
240 m²